Screen Patio Construction in Nokomis, FL 34275 – New Screened Lanai by Screen Factory Florida
Screen Factory Florida just wrapped up another stunning project in Nokomis, Florida (34275): a brand-new screened patio built from the ground up over the homeowner’s existing concrete slab. This modern screened lanai gives the family a comfortable, insect-free outdoor living area they can enjoy 365 days a year, no matter how hot, humid, or rainy it gets in Southwest Florida.
Before we started construction, our team took care of everything: full engineering, permitting, and complete HOA approval — something that’s required in most Nokomis and Venice communities. We also installed a ceiling fan directly into the roof structure so the space stays cool and breezy even on the hottest summer days.
Project goals
The homeowners wanted a low-maintenance, year-round outdoor living space that stayed cool and quiet even during Florida’s intense afternoon downpours, kept mosquitoes and no-see-ums out completely, and fully complied with their community’s strict HOA guidelines. They specifically requested a built-in ceiling fan and an insulated roof so the lanai would stay comfortable from morning coffee to evening dinners—without ever needing the air conditioning.
Photos before
Project Overview
- Location: Nokomis, Florida 34275
- Service: Complete new screen patio / screened lanai construction
- Package Selected: Standard+ with insulated flat roof and ceiling fan upgrade
- Date of installation: September 2025
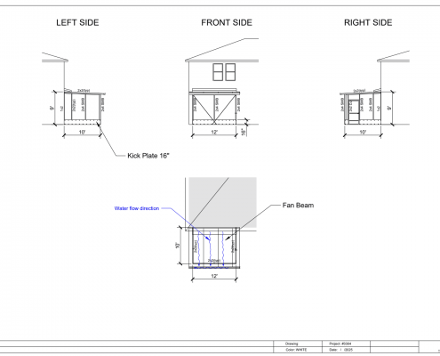
Drawings
Details of the new enclosure
What’s Included in the Standard+ Insulated Roof Package
- 📐 Engineering & Permitting – Custom Florida-engineered plans, local building department approval, and full HOA sign-off
- 🏠 White powder-coated aluminum framing – Bright, clean look that blends perfectly with Florida homes
- 🕸️ Black Super Screen mesh – Premium, nearly invisible screen that’s tear-resistant and UV-protected
- ❄️ 3″ insulated flat roof panels – Installed with a gentle 1/12 pitch to keep rain noise to an absolute minimum
- 💨 Ceiling fan with sealed fan beam – Professionally mounted and ready for your electrician
- 💧 7″ super gutter system – Extra-large gutters and downspouts that move water far away from the house
- 🚪 One reinforced white aluminum door – Placed for convenient access from the home
- 🔩 Stainless steel fasteners & cable bracing – Built to handle Florida’s strongest winds
- 🛡️ Heavy-duty beams and 16″ kickplate – Added strength and protection around the lower perimeter
Result
The new screened lanai turned out bright, open, and incredibly comfortable. The insulated roof keeps the area noticeably cooler and practically silences rain noise, while the ceiling fan creates a constant gentle breeze. Homeowners now have their own private outdoor retreat — perfect for morning coffee, weekend barbecues, or relaxing with a book while staying completely protected from bugs and sudden storms.
This Nokomis project is a perfect example of how Screen Factory Florida makes the entire process easy, even in neighborhoods with strict HOA rules. We handle every detail in-house: design, engineering, permits, HOA coordination, construction, and final inspection — so you don’t have to.
Ready to add a beautiful screened patio or lanai to your home in Nokomis, Venice, Sarasota, Englewood, North Port, or anywhere else in Southwest Florida?
Contact Screen Factory Florida today for your free, no-pressure estimate. We’ll come to you, measure, review any HOA requirements, and give you an exact price — usually the same day!
Call or message us now and start enjoying your new outdoor living space sooner than you think. ☎️
Photos after
















